アルモード 掲示ボード 697 シルバー/ボードベージュ 屋内用 W1200×H900 697C-BE
アルモード 掲示ボード 697 シルバー/ボードベージュ 屋内用 W1200×H900 697C-BE
アルモード 掲示ボード 697 シルバー/ボードベージュ 屋内用 W1200×H900 697C-BE
品番:6300055579
販売価格
通常価格
32,490 円
35,739 円(税込)
単価
あたり
●マグネット専用掲示板です。
●サイドフレームが無いのですっきり見えます。
●シンプルなデザインなので造作サインと組み合わせて使用できます。
●サイドフレームが無いのですっきり見えます。
●シンプルなデザインなので造作サインと組み合わせて使用できます。
| 商業施設や病院・クリニック、学校、公共施設、駅などの屋内インフォメーションボードに。 |
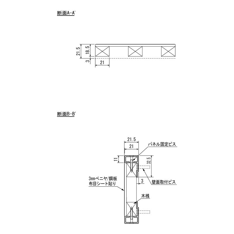
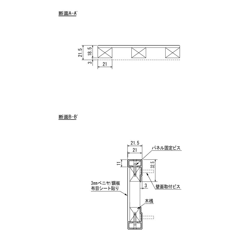
| アルミ押出材アルマイト仕上、樹脂、3mmベニヤ/木桟/鋼板 布目シート貼り |
| 1206 |
| 922 |
| 21.5 |
| 1200 |
| 900 |
| 直付けビス/本体パネル固定用ビス・マグネット(M-5010)8ヶ付き |
| 6.3 |
| 6.3kg |
| 1 台 |
販売価格
通常価格
32,490 円
35,739 円(税込)
単価
あたり
受取状況を読み込めませんでした
0






















